Floorplans & Specification
SPACES FOR EVERY AMBITION
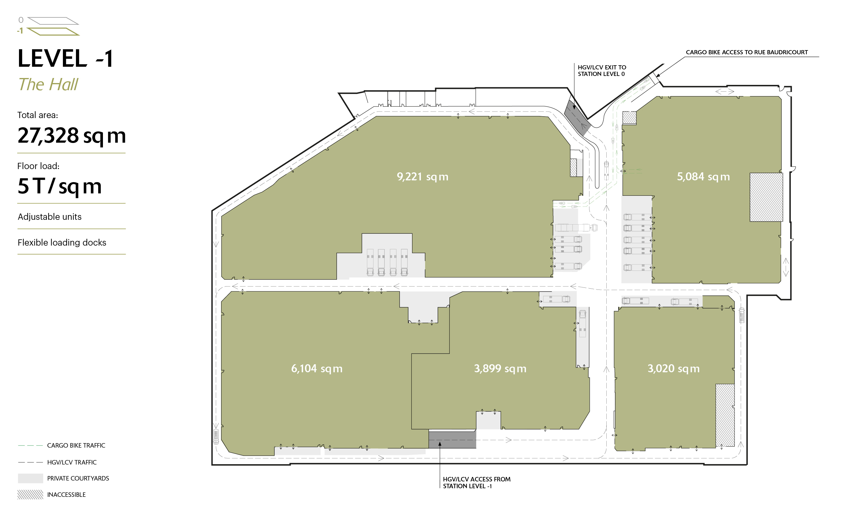
The flexible units at SEGRO Centre Paris Les Gobelins offer exceptional adaptability, with areas ranging from approximately 700 sq m to 14,000 sq m on the ground floor and lower ground floor.
Available now.
Floor plans


Specification
- Enclosed site with 24/7 security monitored by guard posts
- 2 levels accessible to HGVs of all sizes, LCVs and cargo bikes
- Electricity outlet for charging vehicles
- Ground resistance: 3 T/sq m level 0 (Station) and 5 T/sq m level -1 (Hall)
- Clearance heights: up to 5 m level 0 (Station) and 7 m level -1 (Hall)
- Dockside and ground-level doors (depending on the unit)
- 1 door per 700 sq m on average
- 100 % LED lighting and white paint on walls and ceilings
- ICPE 1510 and 2925
- Management tools for logistics flows
SERVICES
- Restaurant and shops nearby
- Outdoor break area
- Meeting rooms available
- Tree-planted green areas
- LV parking nearby